

国家纳米科学中心食堂冷冻冷藏库房项目建设比选公告
国家纳米科学中心因食堂经营需要,现对厨房冷冻冷藏库房项目建设进行比选,具体事宜如下:
一、项目名称:国家纳米科学中心食堂冷冻冷藏库房项目
二、采购人:国家纳米科学中心
三、项目简介:国家纳米科学中心食堂位于北京市海淀区中关村北一条11号5号楼,库房面积40㎡,日用餐人数按照1100人估算。依据食堂管理运营的相关规范要求,根据厨房所在位置的实际情况及今后的用餐情况,拟建设的冷冻冷藏库房需保证食堂厨房的食品储存能力。
四、采购需求:
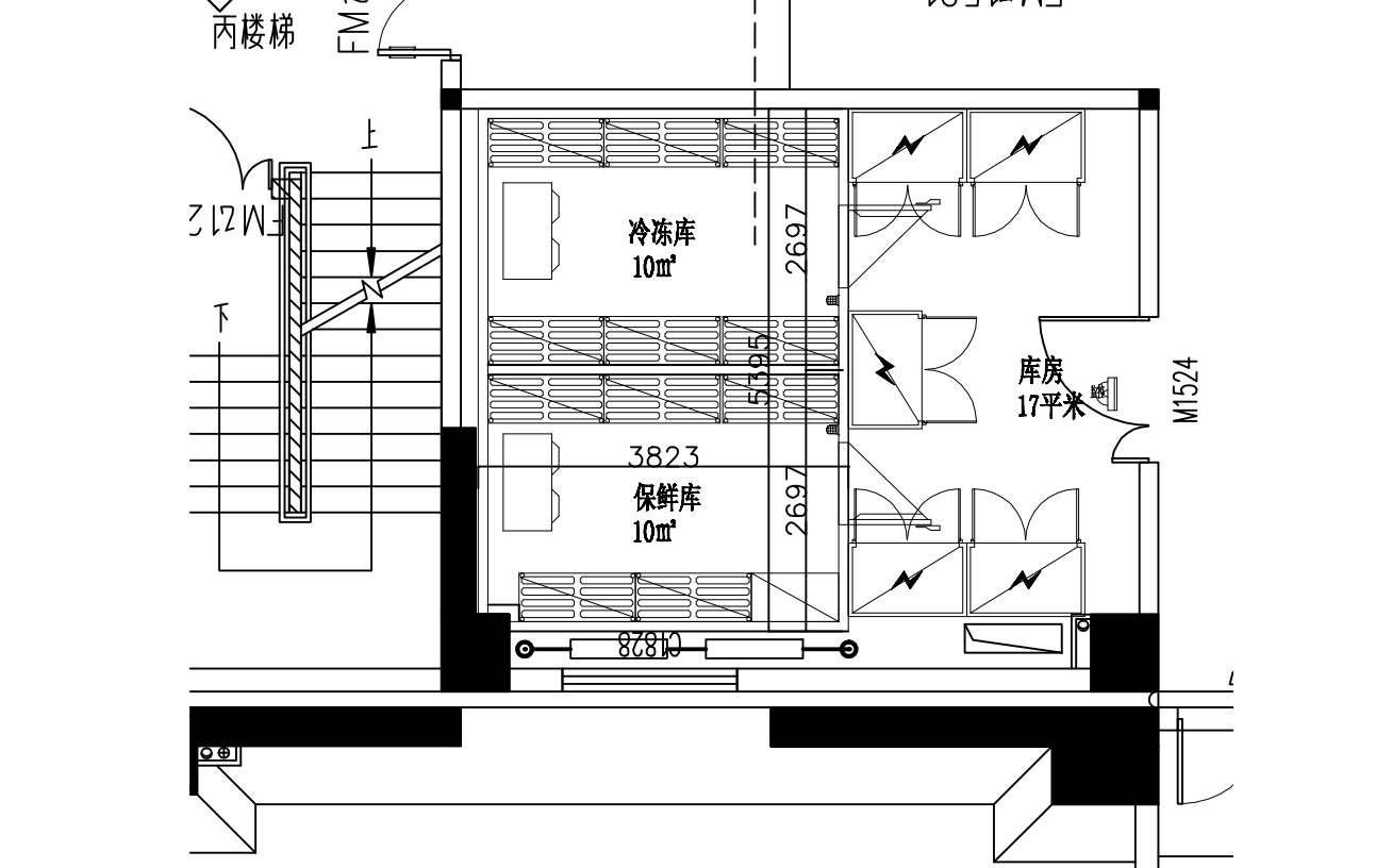
1.冷库规模:根据餐厅生产规模和周储存需求,预计冷藏库的面积需要10平米左右,冷冻库面积10平米左右。
2.温湿度控制:冷冻冷藏库房需要能够提供恒温,恒湿的环境。有自动控温系统。以保障食品的质量和保鲜期。
3.设备设施:库房需要配备先进的冷藏冷冻设备、温湿度控制系统等。
4.安全保障:库房需要具备防火、防盗、防潮等安全措施,确保食品的安全和质量。
5.工程控制价:96000元
五、申请人资格要求
1.在中华人民共和国境内注册,具有相应资质,能够独立承担民事责任的企业法人;
2.具有良好的商业信誉和健全的财务会计制度;
3.具有履行合同所必需的设备和专业技术能力;
4.有依法缴纳税收和社会保障资金的良好记录;
5.三年内经营活动中没有重大违法记录;
6.法律、行政法规规定的其他条件。
六、提交文件及现场踏勘的时间和要求
1.现场踏勘时间:2024年3月26-27日非用餐时间。附件二《冷库方案图》为现场示意图。具体方案个公司结合踏勘,明确提出合理方案。
2.提交文件截止时间:申请人于2024年4月3日14:00前(如遇特殊情况,将以具体通知为准)提供文件,逾期或不符合要求的投标材料将被拒收。
3.文件要求:按照本公告文件中所列需求进行方案设计及报价(需密封),所有文件需要加盖单位公章,提交1份正本,1份副本,1份电子版文件(盖章后扫描)。
4.提交地点:北京市海淀区中关村北一条11号5号楼308房间(申请人到达后提前告知联系人)。
七、比选时间及地点
2024年4月3日14:00(北京时间)国家纳米科学中心5号楼辅楼3层第三会议室。
八、递交评审文件时,还需提供以下材料:
1.企业法定代表人证明书或经办人授权委托书原件。
2.企业法人营业执照(副本)原件及复印件加盖公章、满足投标资格要求的其他资质文件。(原件验后立即归还)
3.申请人自愿提供本企业宣传介绍的相关资料。
九、联系方式
地址:北京市海淀区中关村北一条11号5号楼308房间
联系人:包 薇
联系电话:82545606
国家纳米科学中心
2024年3月25日